70 WALL
Engineered Curtain Wall Systems

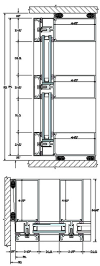
70 Wall, a 2 1/2" wide profile curtain wall system with varying depths, is a proven system for low and high-rise applications. 70 Wall is water-tight, rugged, and versatile, and its thermally broken design makes it an excellent choice for today’s complex applications.


Available in overall nominal depths from 5 1/2" to 10 1/2" when installed with 1" glazing, 70 Wall will accommodate a wide range of infills from 1/8" to 1 1/8". It can also be furnished with different inside and outside finishes to meet the most demanding design criteria, and is tested to meet stringent wind load requirements. Additionally, 70 Wall easily allows for horizontal expansion and vertical stacking.


EFG 800
Two-Sided, Silicone Glazed Curtain Wall

Designed with the same strength and versatility as 70 Wall, Pittco’s EFG 800 is the right choice when two-sided, silicone glazed curtain wall is required. Specifically designed for silicone glazing, EFG 800 can accommodate two-sided structural glazing, and incorporates all silicone glazing guidelines provided by AAMA. In addition, its compatibility with Pittco’s 70 Wall allows for easy transition between the two systems.

Description Test Method Allowable Achieved
Air ASTM
E-283
.06 cfm/sqft @ 6.24 psf .04 cfm @ 6.24 psf
Water
(Static)
ASTM
E-331
No Uncontrolled
Water @ 10.0 psf
Passed
Water (Dynamic) ASTM
E-501.1
No Uncontrolled
Water @ 10.0 psf
Passed
Structural ASTM
E-330
No Permanent Deformation @ 50 psf Passed
Seismic Racking UBC
2334
No Failure No Failure
CRF AAMA 1503.1 N/A 64.0
U Value AAMA 1503.1 N/A .47 BTU/hr/ft2/ºF